About 5010 Hunt Cir
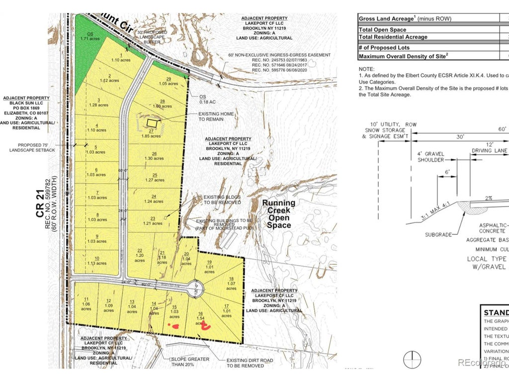
THIS IS WHAT YOU HAVE BEEN WAITING FOR! Nestled in the outskirts of this charming rural town, this expansive piece of land offers a serene escape from the hustle and bustle of city life. Spanning approximately 1+ acres, the property is gently sloping, providing picturesque views of the surrounding landscape and a perfect canvas for your dream home. Lush greenery blankets the area, and a meandering stream runs along one edge of the property, enhancing the tranquil ambiance and offering opportunities for outdoor enjoyment. The land is easily accessible via a well-maintained road, with utilities such as electricity, gas, and water conveniently available on each lot! This prime location allows for creativity in design, whether you envision a modern farmhouse, a cozy cottage, or a luxurious retreat. With ample space for landscaping or even a small garden, this piece of land is a rare find for anyone looking to build their ideal haven. Embrace the peaceful lifestyle and the beauty of nature as you create an extraordinary living space tailored to your needs. Did I mention no HOA?! Just a 5-minute drive to Spring Valley Golf Club, close to shopping, restaurants, and entertainment. DON'T MISS OUT! Please contact my preferred land lender Braden Cooper for any of your lending needs or questions at 719.761.1337 braden.cooper@thestocksmensbank.com Lot # 15 1.03
Features of 5010 Hunt Cir
| MLS® # | 5437098 | 
|---|---|
| Price | $200,000 | 
| Acres | 1.03 | 
| Type | Land | 
| Sub-Type | Unimproved Land | 
| Status | Active | 
Community Information
| Address | 5010 Hunt Cir | 
|---|---|
| Area | Elizabeth | 
| Subdivision | Hillside Estates | 
| City | Elizabeth | 
| County | Elbert | 
| State | CO | 
| Zip Code | 80107 | 
Amenities
| Utilities | Natural Gas Available, Electricity Available, Natural Gas at Property | 
|---|---|
| Garages | None | 
| Is Waterfront | No | 
| Has Pool | No | 
Interior
| Fireplace | No | 
|---|
School Information
| District | Elizabeth C-1 | 
|---|
Additional Information
| Days on Market | 341 | 
|---|---|
| Zoning | A | 
| Foreclosure | No | 
| Short Sale | No | 
| RE / Bank Owned | No | 
Listing Details
| Office | HomeSmart Realty | 
|---|---|
| Contact Info | 303-641-1550 | 
